741 Cottage Ct, Mountain View

Quiet end-unit located in bustling Mountain View

Status
Sold

Characteristics
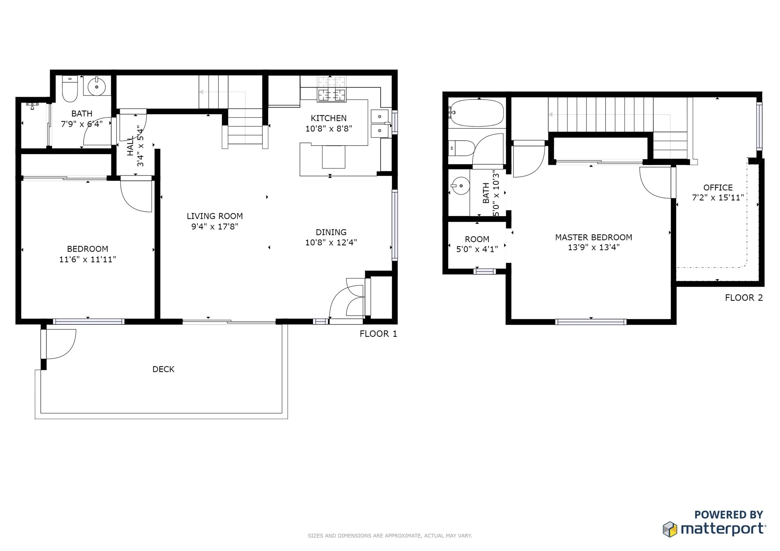
2 bedrooms
2 bathrooms
1,150 sqft interior
Detached garage
HOA $348/month

MLS
ML81760033

Contact
Alex Wang
650-331-9088

Highlights

  • Desirable end-unit located in a quiet community with low HOA fees

  • Enjoy all the conveniences of bustling Mountain View, just minutes from popular shopping centers, top tech companies and highly-rated school attendance at Los Altos High

  • The flexible open living/dining room is filled with lots of natural light from the private fenced patio

  • Fully featured kitchen has granite tile countertops, stylish shaker cabinets, and recessed lighting

  • Convenient downstairs bedroom is next to the full hallway bathroom and closet with newer washer/dryer stacked units

  • Upstairs master suite boasts a vaulted ceiling, private bath, storage nook, and bonus space perfect for a hobby or office

  • Additional amenities include 1-car garage plus assigned parking and community club house and lawn


Gallery


Floor Plan


Neighborhood Map

 
Liza Sem

Creative Digital Strategist

https://lizasem.com
Previous
Previous

1127 Chapel Dr, Santa Clara

Next
Next

18940 Sunnybrook Ct, Saratoga